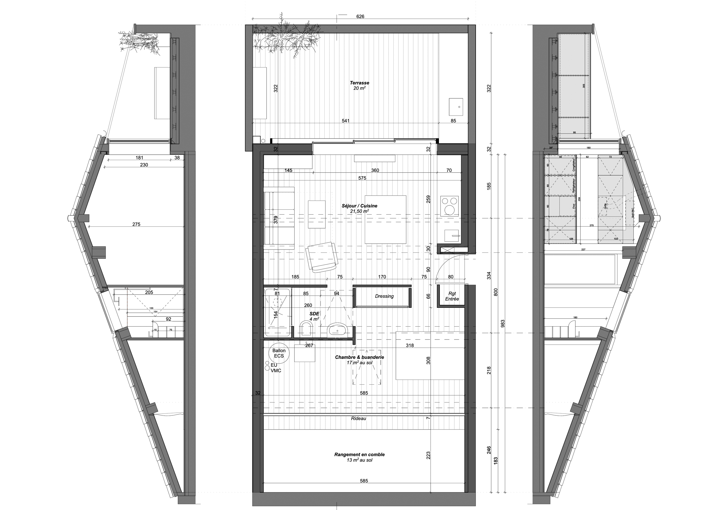
“APPARTEMENT CARAMAN”
Réhabilitation d’un appartement sous combles
Toulouse (31)

Lieu : TOULOUSE (31)
Programme : Réhabilitation d’un appartement de 2 pièces sous combles avec terrasse sur les toits
Maîtrise d’ouvrage : Privée
Maîtrise d’oeuvre : M.A.T architectures
Avancement : Livré en décembre 2023
Surface : 53 m2 SU (28 m2 Carrez)
Budget : € NC
Particularité : Optimisation des espaces et hauteurs sous rampants
Agrandissement d’une ouverture sur terrase avec vue sur les toits
Missions de M.A.T : MOE COMPLÈTE (études & chantier)

À Bordeaux, rue de Preignac, l’atelier M.A.T conçoit et réalise en autoconstruction la réhabilitation avec surélévation d’une échoppe de 6 m de large sur une parcelle de 21 m de long. La maison est implantée en retrait de la rue, entre deux espaces extérieurs : un jardin d’accueil à l’avant et une cour minéralisée en cœur d’îlot.
La maison d’origine, de plain-pied, est identifiée comme construction protégée ; sa façade en pierre de 4,5 m de haut est immuable. Face à l’état d’usure avancée du bâti, aux problématiques d’humidité et à l’encombrement de la cour arrière par des dépendances, une réfection complète a été privilégiée.

En curant l’ensemble pour révéler la pierre et libérer la parcelle des ajouts successifs, un nouveau volume en bois est construit et ouvre la maison sur le cœur d’îlot. Il crée un étage en s’insérant entre les murs en pierre mitoyens et la façade sur rue conservée. Ainsi, le projet parvient à augmenter la surface habitable tout en doublant la surface du jardin intérieur, qui retrouve sa fonction d’origine. Entre minéralité et bois, les volumes traversants dialoguent avec les jardins et le paysage environnant pour offrir une maison lumineuse et ventilée naturellement.

“ Cette autoconstruction marque pour moi un point de convergence entre mes différentes aspirations : concevoir et réaliser, mais aussi partager et apprendre en construisant aux côtés de mon beau-père, compagnon serrurier-forgeron, et de mon oncle, maçon Meilleur Ouvrier de France. Deux personnes qui m’ont inspiré pour devenir architecte. Deux ans d’un engagement total pour une aventure humaine aussi exigeante que passionnante. ”